Hiša - DOBRINJ - 620.000 EUR
| Lokacija | DOBRINJ, KRK |
| Cena € | 620.000 |
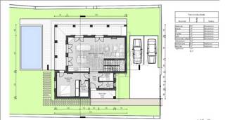
| Površina | 182 m2 |
| Število sob | 5 |
| Površina parcele | 500 m2 |
| Število kopalnic | 4 |
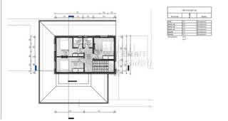
Nepremičninska agencija Domino vam predstavlja čudovito in edinstveno vilo na otoku Krku! Površina te čudovite hiše je 182 m2 in je sestavljena iz dveh nadstropij. Pritličje sestavljajo prostorna dnevna soba s kuhinjo in jedilnico, ena spalnica z lastno kopalnico, stranišče, tehnična soba in hodnik. Prvo nadstropje hiše, ki je s pritličjem povezano z notranjim stopniščem, vsebuje še 3 spalnice in dve kopalnici (ena spalnica ima svojo kopalnico, druga pa si jo delita dve sobi). Čudovit prostoren vrt, velik približno 500 m2, vsebuje bazen, prostor za sončenje, pokrito teraso, parkirišče za 2 avtomobila... Vila bo opremljena s toplotno črpalko, visokokakovostno keramiko v vseh sobah, kopalnicah, klimatsko napravo. Privlačnost hiše je še bolj izrazita glede na to, da bo zgrajena v mediteranskem slogu, deli hiše so obloženi s kamnom, polkna so modre barve. Hiša je v gradnji in v tej fazi je možno, da kupec sam izbere keramiko, kar lahko investitor stori pred pridobitvijo uporabnega dovoljenja. Priložene so tudi slike sosednje skoraj identične hiše, ki je že zgrajena in prodana. To je priložnost tudi za ljudi, ki se želijo ukvarjati s turizmom. Takšna vila lahko ustvari veliko prihodkov v turizmu, naložba pa se lahko hitro povrne! Oddaljenost od plaž je 3500 metrov. Zaključek del in vselitev sta predvidena za poletje 2026. Agencija Domino Real Estate bo z ekipo odvetnikov in posebno pozornostjo uredila celotno dokumentacijo v zvezi z nakupom in prodajo nepremičnin, prenosom lastništva in komunalnih storitev. Vse, kar morate storiti, je, da prevzamete nepremičnino na ključ.
ID: 1243039