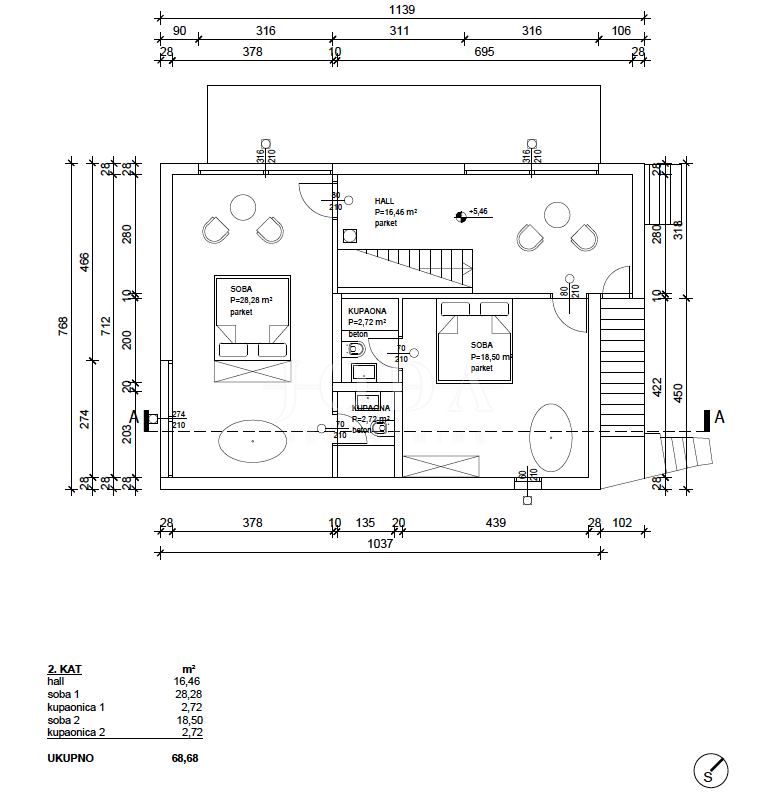
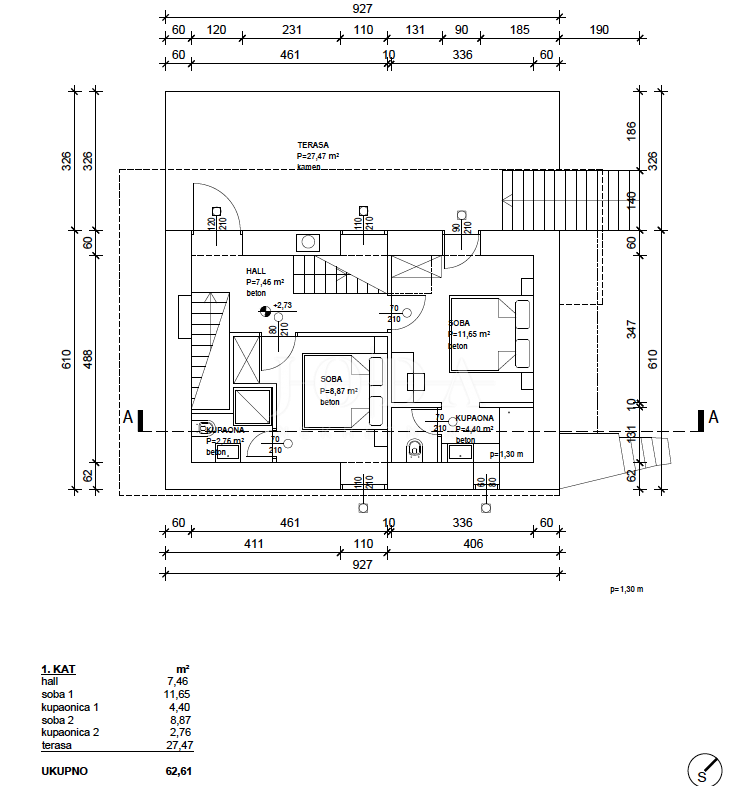
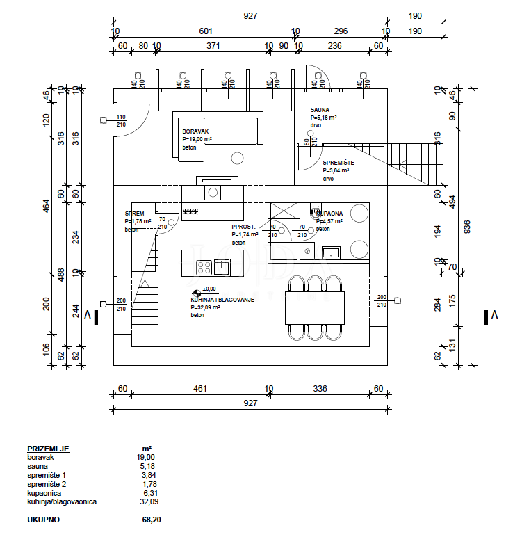
Hiša v mestu DOBRINJ cena 599.000 EUR s površino 226 m2

Moderna vila v mirnem okolju