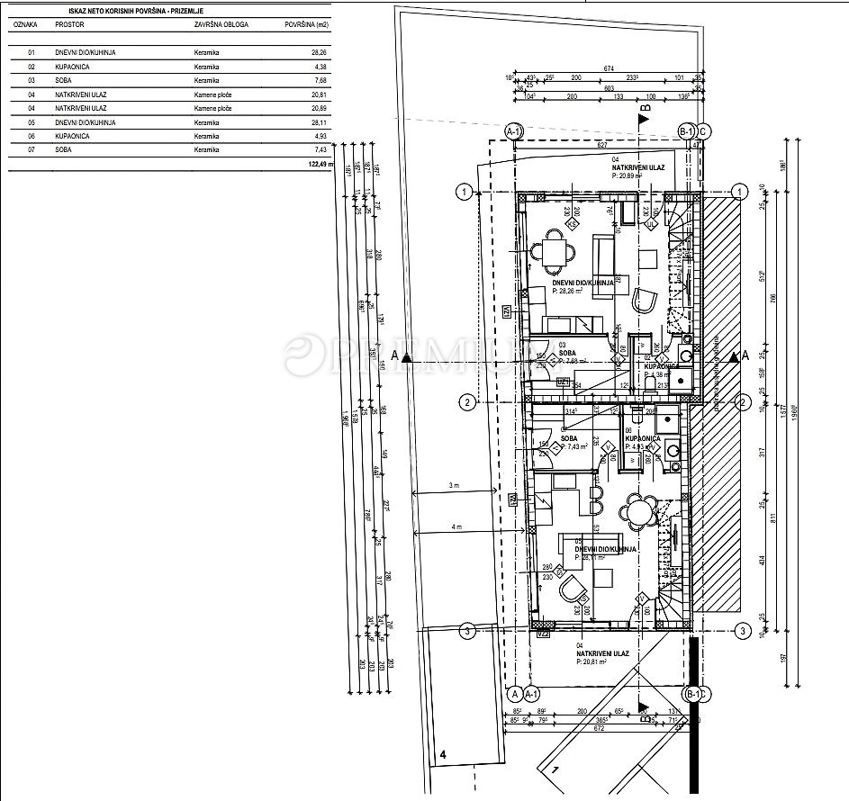
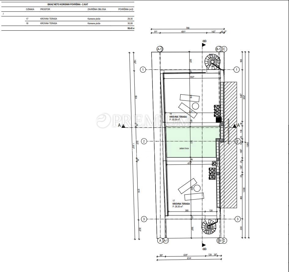
Hiša v mestu KRK cena 260.000 EUR s površino 197 m2

Hiša v okolici Krka s projektom prenove!