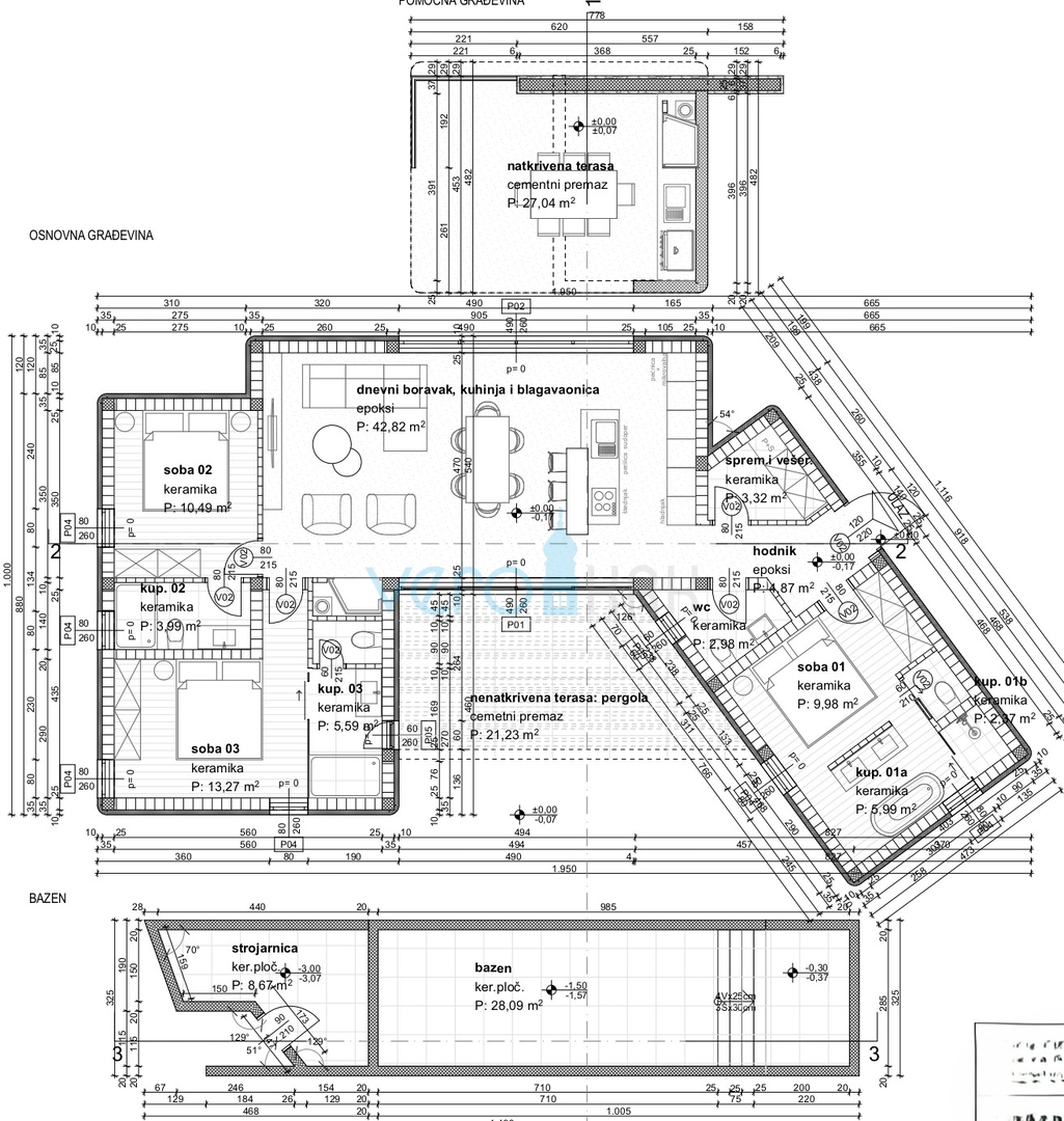
Hiša v mestu KRK cena 850.000 EUR s površino 163 m2

Otok Krk, mesto Krk, širša okolica, samostojna moderna hiša s bazenom, pogled na morje, prodaja