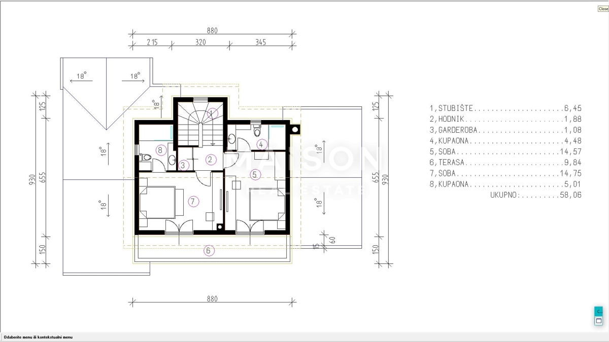
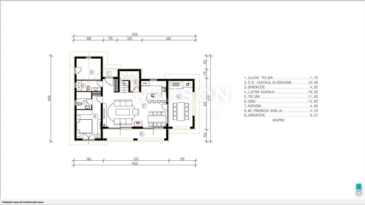
Hiša v mestu KRK cena 950.000 EUR s površino 170 m2

Mediteranska vila z bazenom pri Krku – pogled na morje