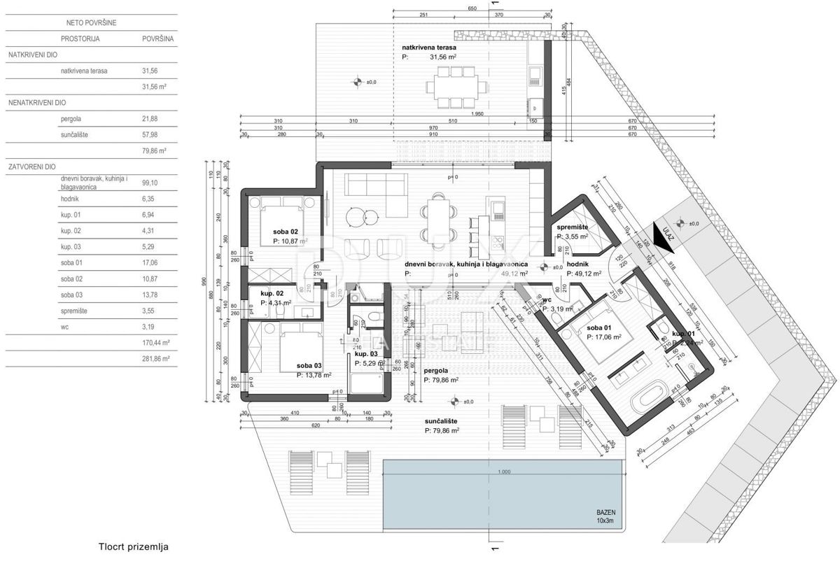
Hiša v mestu LINARDIĆI cena 850.000 EUR s površino 135 m2

OTOK KRK, LINARDIĆI - Luksuzna moderna enonadstropna hiša z bazenom in pogledom na morje