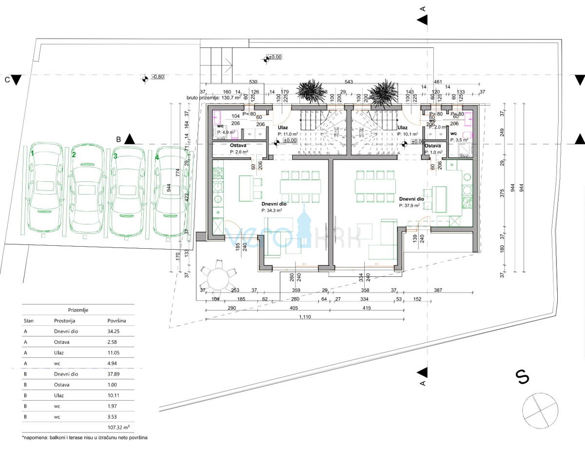
Hiša v mestu MALINSKA cena 487.000 EUR s površino 122 m2

Malinska, otok Krk, novogradnja, moderna dvojna kuća, pogled, okućnica, prodaja

Malinska, otok Krk, novogradnja, moderna dvojna hiša, razgled, vrt, prodaja