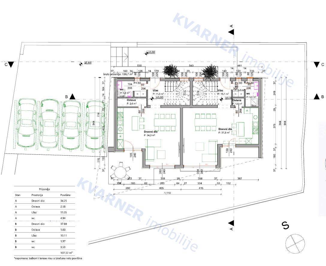
Hiša v mestu MALINSKA cena 487.000 EUR s površino 122 m2

Malinska - moderna nova dvojček hiša