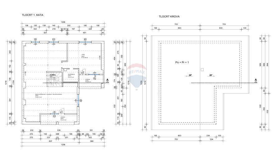
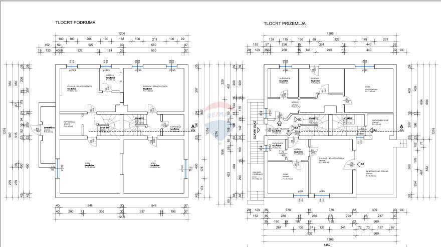
Hiša v mestu MALINSKA cena 490.000 EUR s površino 398 m2

Hiša Malinska, Malinska-Dubašnica, 398m2