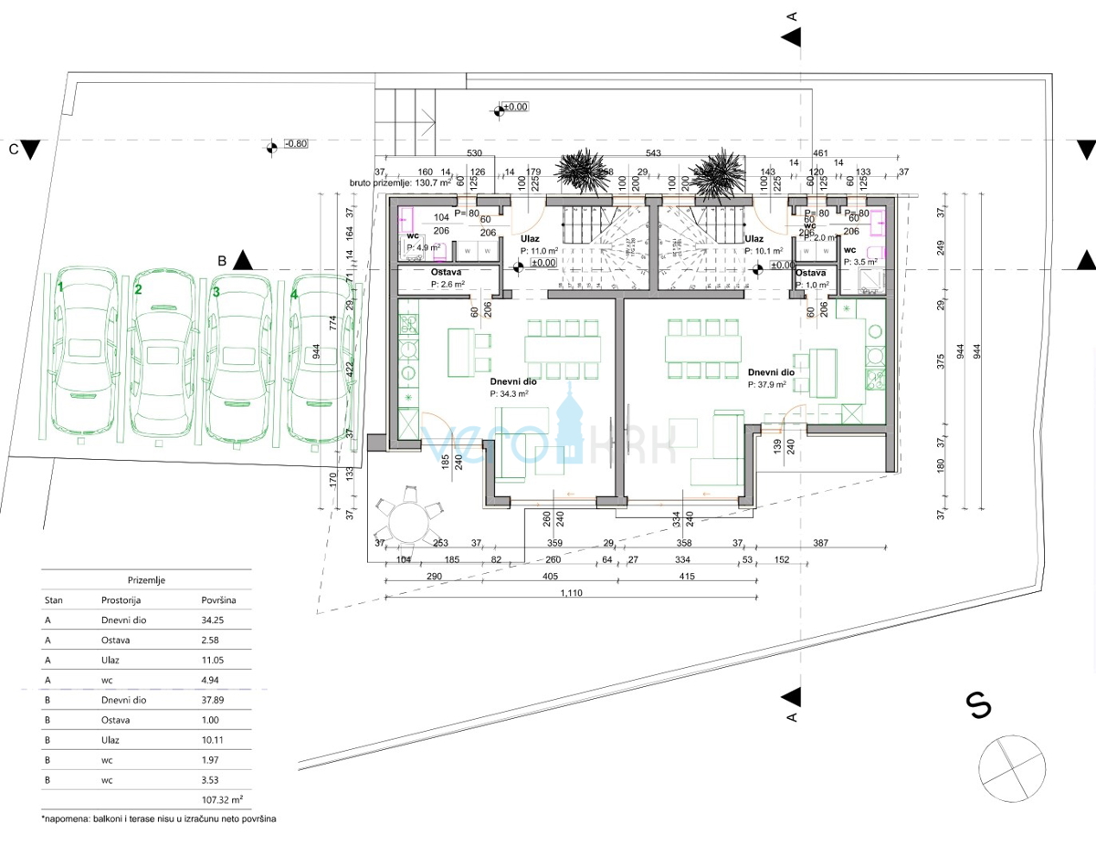
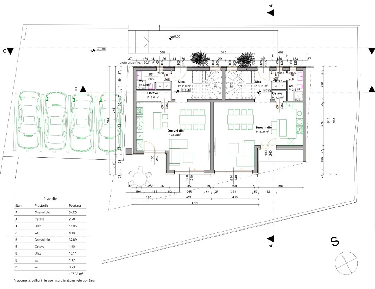
Hiša v mestu MALINSKA cena 520.000 EUR s površino 132 m2

Malinska, otok Krk, nova moderna dvojna hiša, bazen, razgled, vrt, prodaja