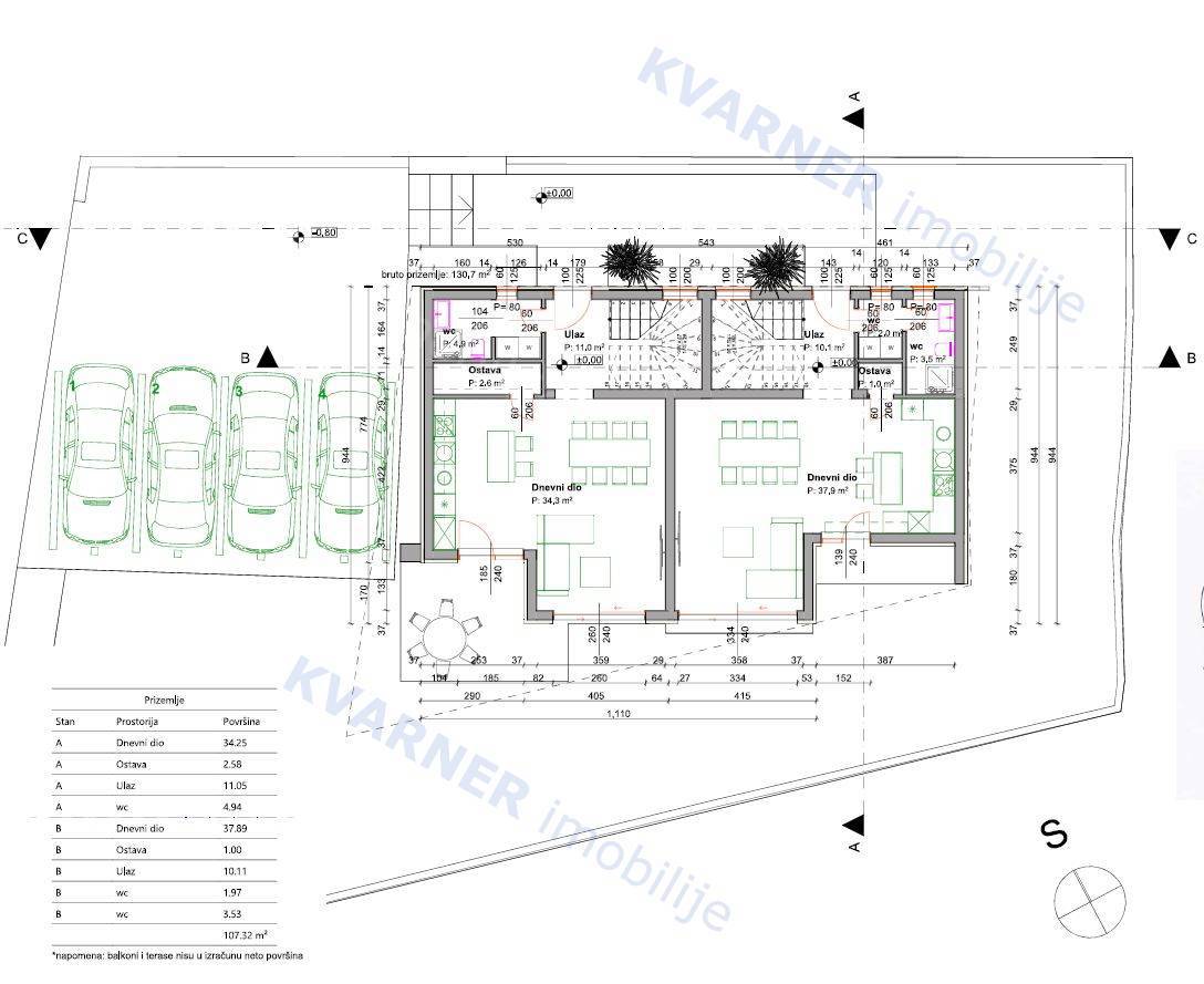
Hiša v mestu MALINSKA cena 520.000 EUR s površino 137 m2

Malinska - Dvojna hiša s bazenom in vrtom