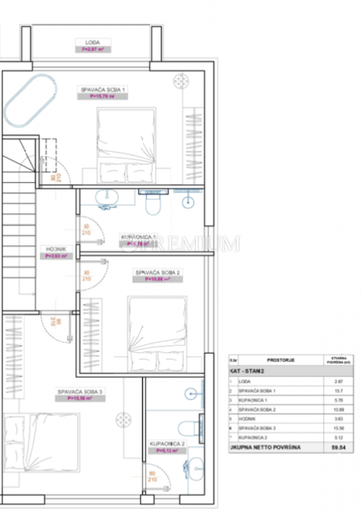
Hiša v mestu MALINSKA cena 580.000 EUR s površino 121 m2

Malinska, nova dvojna hiša s bazenom!