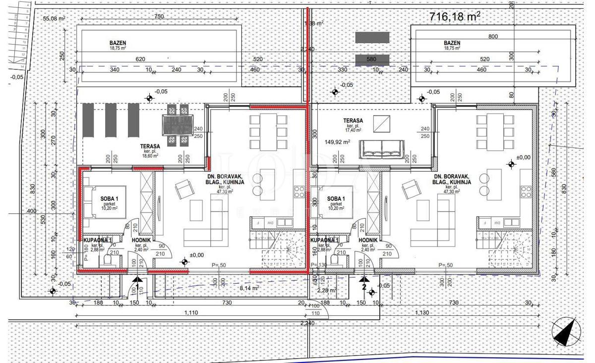
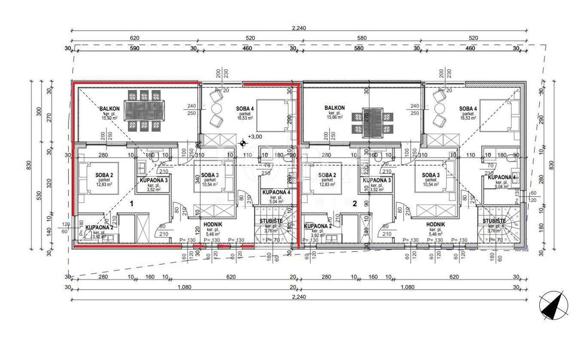
Hiša v mestu MALINSKA cena 620.000 EUR s površino 159 m2

Hiša z bazenom - novogradnja, Malinska