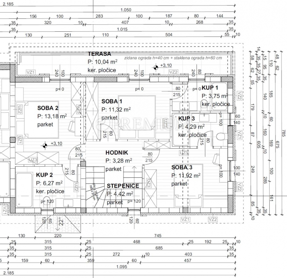
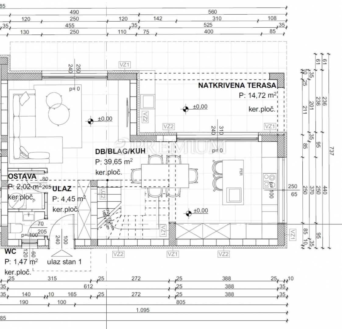
Hiša v mestu MALINSKA cena 620.000 EUR s površino 122 m2

Malinska, hiša z bazenom in pogledom na morje, novogradnja!