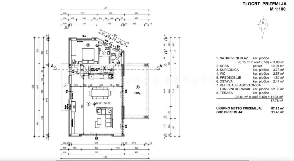
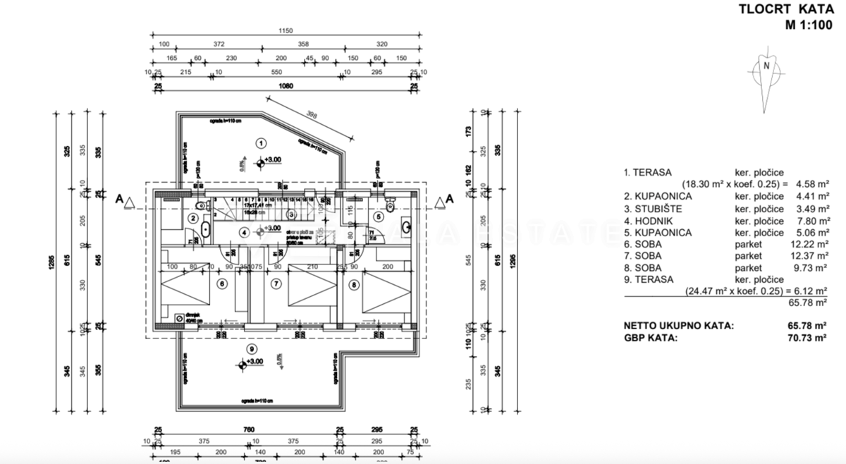
Hiša v mestu MALINSKA cena 630.000 EUR s površino 153 m2

NOVA SAMOSTOJNA HIŠA Z BAZENOM IN POGLEDOM NA MORJE