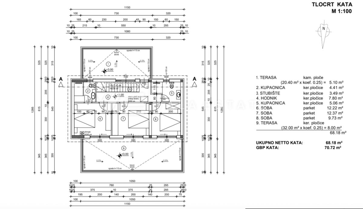
Hiša v mestu MALINSKA cena 630.000 EUR s površino 162 m2

MODERNA SAMOSTOJNA HIŠA Z BAZENOM IN POGLEDOM NA MORJE