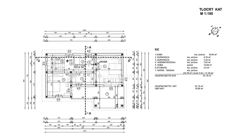
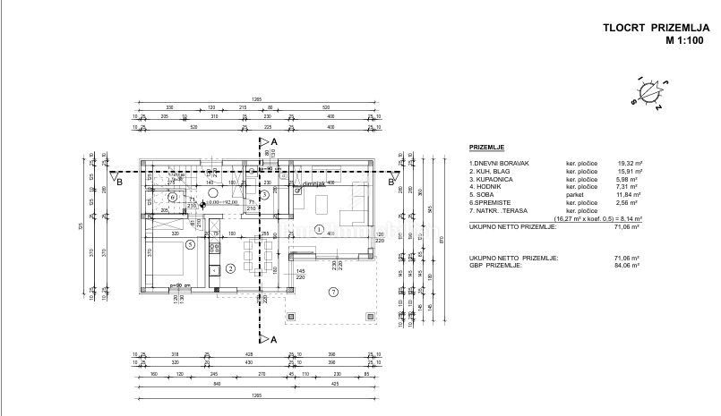
Hiša v mestu MALINSKA cena 860.000 EUR s površino 160 m2

Malinska – nova nizkoenergijska rustikalna hiša