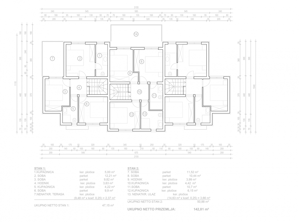
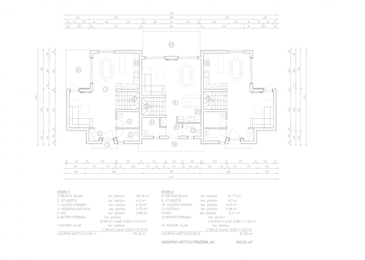
Hiša v mestu NJIVICE cena 480.000 EUR s površino 108 m2

OTOK KRK, NJIVICE - Vrstna hiša z bazenom, novogradnja