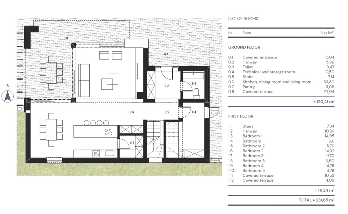
Hiša v mestu ŠILO cena 1.499.000 EUR s površino 231 m2

Šilo, nova luksuzna vila s pogledom na morje na atraktivni lokaciji!