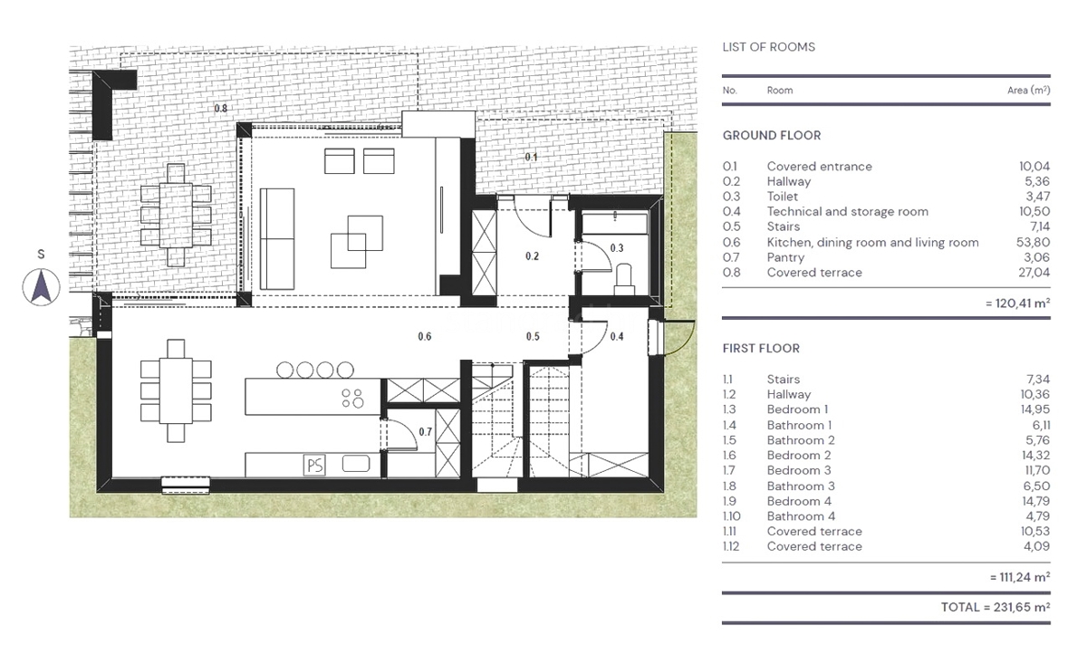
Hiša v mestu ŠILO cena 1.499.000 EUR s površino 232 m2

Šilo, razkošna vila s prostornim vrtom v neposredni bližini morja!