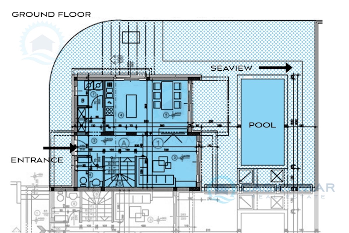
Hiša v mestu VRBNIK cena 600.000 EUR s površino 146 m2

Dvostanovanjska vila v okolici Vrbnika s panoramskim pogledom na morje in bazenom!