Hiša - KRK - 1.500.000 EUR
| Lokacija | KRK, KRK |
| Cena € | 1.500.000 |
| Površina | 238 m2 |
| Število sob | 5 |
| Površina parcele | 605 m2 |
| Število kopalnic | 5 |
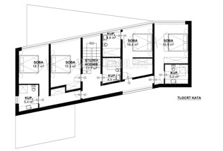
Okolica mesta Krk, prodaja, impozantna vila z bazenom, na mirni lokaciji, na robu gradbenega območja, v izgradnji! Vila s površino 238 m2 je sestavljena iz pritličja in prvega nadstropja, ki sta povezana z notranjim stopniščem. V pritličju hiše je vhodni del, hodnik, shramba, wellness, odprta kuhinja z jedilnico in dnevna soba z izhodom na vrt z ogrevanim bazenom in sončno teraso. Prvo nadstropje sestavljajo hodnik, štiri kopalnice in štiri spalnice, od katerih imajo tri izhod na teraso s čudovitim pogledom na zelenico. Hiša bo opremljena z video nadzorom, alarmnim sistemom, toplotno črpalko, protivlomnimi vrati, kvalitetnimi talnimi oblogami, alu stavbnim pohištvom in v celoti klimatizirana. Na vrtu je tudi garaža za parkiranje enega avtomobila in zunanji parkirni prostor. Mirna lokacija, idealna za dopust, na robu gradbenega območja! Prodaja na ključ, predviden zaključek del spomladi 2025. Nepremičnina je vključena v sistem DDV, zato kupec ne plača davka na promet z nepremičninami v višini 3 %.
ID: 1068518