Hiša - MALINSKA - 550.000 EUR
| Lokacija | MALINSKA, KRK |
| Cena € | 550.000 |
| Površina | 119 m2 |
| Število sob | 4 |
| Površina parcele | 200 m2 |
| Število kopalnic | 3 |
| Bližina prevoza | DA |
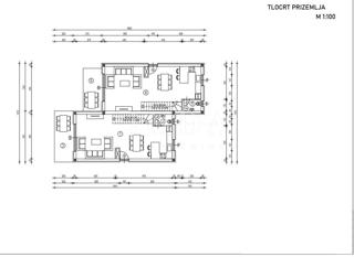
Malinska, prodamo kvalitetno novogradnjo s površino 119,59 m2, 600 m od morja in centra Malinske. Sestoji iz pritličja in prvega nadstropja. V pritličju je odprt prostor, ki obsega kuhinjo z jedilnico in dnevno sobo, WC in pokrito teraso. V prvem nadstropju so tri spalnice, od katerih ima ena lastno kopalnico in pokrito teraso s pogledom na morje ter druga kopalnica. Vrt velikosti cca. 200 m2 bo imel bazen in veliko teraso, hiši pa bosta pripadali tudi dve parkirni mesti. Hiša bo izdelana iz kvalitetnih materialov, vsi prostori bodo klimatizirani, vgrajeno električno talno gretje, alu rolete z drsnimi stenami, deli fasade in vrta bodo obloženi z naravnim kamnom. Začetek gradnje je predviden septembra 2025, rok dokončanja pa junija 2026. Za navedeno ceno se prodaja na ključ.
ID: 1188502