Hiša - MALINSKA - 620.000 EUR
| Lokacija | MALINSKA, KRK |
| Cena € | 620.000 |
| Površina | 123 m2 |
| Število sob | 4 |
| Površina parcele | 131 m2 |
| Število kopalnic | 4 |
| Bližina prevoza | DA |
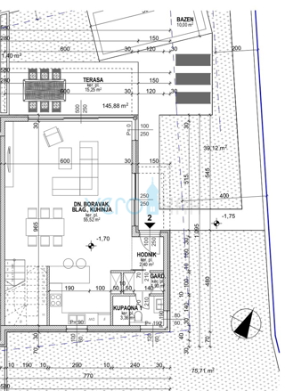
Malinska, moderna dvojna hiša v gradnji, pogled, bližina centra! Prodajamo novo, moderno dvojno hišo (levo) z vrtom 131 m2, ki se nahaja na mirni lokaciji, oddaljeni le 800 metrov od plaže. Hiša je sestavljena iz pritličja, nadstropja in mansarde. V pritličju se nahajajo hodnik, garderobni prostor, prostorna kopalnica, kuhinja in jedilnica ter prostoren dnevni prostor z izhodom na pokrito teraso (15,37 m2), bazen (14,40 m2) in sončno teraso. Iz pritličja je delni pogled na morje. Notranje stopnice vodijo v nadstropje, kjer so tri prostorne spalnice, vsaka s svojo kopalnico. Dve sobi imata izhod na skupni balkon (3,24 m2) ter garderobni prostor. V mansardi je predviden shranjevalni prostor. V hiši je vgrajena kakovostna troslojna PVC stavbno pohištvo, električne rolete na daljinsko upravljanje z mrežicami proti komarjem, protivlomna vrata, talne obloge iz keramike, izvedeno talno ogrevanje po sistemu toplotne črpalke Valliant ter dodatna Bosch klimatska naprava v vseh prostorih. Hiši pripadata dve parkirni mesti na urejenem zemljišču. DDV je v ceni! Do plaže je približno 800 m!
ID: 1045931