Hiša - PUNAT - 1.625.000 EUR
| Lokacija | PUNAT, KRK |
| Cena € | 1.625.000 |
| Površina | 221 m2 |
| Število sob | 4 |
| Površina parcele | 450 m2 |
| Število kopalnic | 5 |
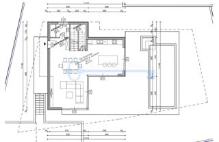
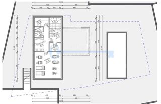
Na prodaj je luksuzna vila v izgradnji z bivalno površino 221,6 m2. Sestoji iz kleti, pritličja in nadstropja. V kleti je hodnik, fitnes, garderoba, savna, kopalnica in shramba. V pritličju se nahaja predsoba, dnevna soba s kuhinjo in jedilnico, kopalnica in velika terasa 32,68 m2. V prvem nadstropju so tri spalnice s kopalnico in garderobami ter balkon 25,98 m2. Ima vrt z bazenom. Nahaja se na mirni lokaciji, 500 metrov od morja in plaže.
ID: 902613