Hiša - MALINSKA - 487.000 EUR
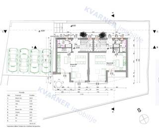
| Lokacija | MALINSKA, KRK |
| Cena € | 487.000 |
| Površina | 122 m2 |
| Število sob | 4 |
| Površina parcele | 110 m2 |
| Število kopalnic | 3 |
Moderna dvojček hiša v Malinski - otok Krk Na privlačni in mirni lokaciji v Malinski je naprodaj moderna polovica dvojčka s skupno bivalno površino 122,80 m², idealna za družinsko življenje ali turistični najem. Hiša je sestavljena iz dveh dvoetažnih stanovanj s funkcionalno razporeditvijo in prostorno dnevno sobo s kuhinjo in jedilnico, ki je povezana s teraso in zasebnim vrtom velikosti 110 m². V nadstropju so tri spalnice, vključno z glavno spalnico z lastno kopalnico in ložo s pogledom na morje. Hiša je zgrajena po visokih standardih, s poudarkom na energetski učinkovitosti in dolgoročni funkcionalnosti. Opremljena je z multi-split klimatsko napravo, talnim ogrevanjem, parketom v spalnicah, italijansko keramiko ter PVC okni z električnimi roletami in komarniki. Dodatno varnost zagotavljajo protivlomna vrata, priprava za alarm in video nadzor, nepremičnina pa je pripravljena tudi za namestitev sončnih panelov. Urejena okolica vključuje parkirno mesto s pripravo za polnjenje električnega vozila ter dodatni prostor za še dva avtomobila. Zaključek gradnje in vselitev sta predvidena do konca leta 2026. Ta nepremičnina predstavlja odlično priložnost za kupce, ki iščejo moderno hišo na zaželeni lokaciji otoka Krka, bodisi za lastno bivanje ali kot investicijo za turistični najem. Za več informacij ali dogovor za ogled nepremičnine nas lahko kontaktirate na številko +385919065207 ali pa nas obiščete v naši poslovalnici v Njivicah, Cvjetni trg 6. Kvarner Imobilije d.o.o. vam bo pomagal pri prenosu lastništva nepremičnine in priključkov na komunalno omrežje. Kvarner imobilije d.o.o. je vodilna nepremičninska agencija na otoku Krk. Naše znanje in 30 let izkušenj sta vaša prednost! Spremljajte nas na Facebooku in Instagramu: kvarner_imobilije_croatia
ID: 1265085