Hiša - MALINSKA - 580.000 EUR
| Lokacija | MALINSKA, KRK |
| Cena € | 580.000 |
| Površina | 121 m2 |
| Število sob | 4 |
| Površina parcele | 200 m2 |
| Število kopalnic | 3 |
| Bližina prevoza | DA |
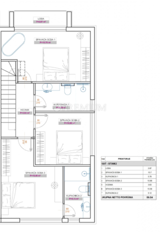
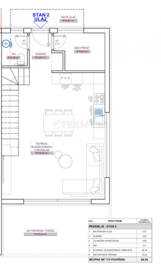
V mirnem in prijetnem delu Malinske je v gradnji moderna dvojna hiša z bazenom, skupne površine 121 m². Hiša obsega dve etaži: pritličje in nadstropje. V pritličju se nahajajo prostorna dnevna soba, moderna kuhinja, jedilnica, tehnični prostor in gostinski WC. Iz dnevne sobe je izhod na pokrito teraso in vrt. V nadstropju se nahajajo hodnik, tri spalnice in dve kopalnici. Master spalnica ima lastno kopalnico. Vrt cca 200m2 z bazenom velikosti 18 m² in prostorom za sončenje je opremljen s sistemom samodejnega namakanja ter vključuje dve parkirni mesti. Hiša bo opremljena s klimatskimi napravami v vseh prostorih, talnim ogrevanjem s toplotno črpalko, kakovostnim ALU - PVC stavbnim pohištvom, vrhunsko keramiko in sanitarno opremo, kar zagotavlja udoben in sodoben bivalni prostor ter jo naredi idealno za družinsko bivanje, celoletno uporabo ali kot investicijo v nepremičnine. Nepremičnina v Malinski se prodaja po sistemu »ključ v roke«, zaključek gradnje je predviden za julij 2026. Kupec ne plača davka na promet nepremičnin, saj je prodajalec zavezanec za DDV.
ID: 1255586