Hiša - NJIVICE - 480.000 EUR
| Lokacija | NJIVICE, KRK |
| Cena € | 480.000 |
| Površina | 108 m2 |
| Število sob | 4 |
| Površina parcele | 0 m2 |
| Število kopalnic | 3 |
| Bližina prevoza | DA |
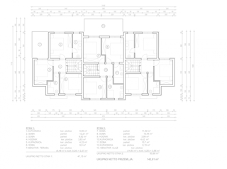
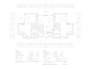
Prodaja vrstna hiša v Njivicah na otoku Krku, novogradnja, ki se nahaja na mirni lokaciji približno 500 metrov od morja, z lastnim bazenom in pripadajočimi parkirnimi mesti. Ob vstopu v hišo pridete do pokritega vhoda, ki vodi v lepo organiziran vhodni prostor s prostorom za garderobo in stranišče za goste. Že ob vstopu začutite prijetno, nekoliko toplejše vzdušje prostora in dober pretok med posameznimi funkcionalnimi enotami. Iz vhodnega prostora naravno pridete do osrednjega dela hiše, kjer je stopnišče diskretno integrirano v tloris, brez izgube uporabne površine in z ohranjenim občutkom odprtosti. Z nadaljevanjem gibanja pridete do dnevnega prostora, ki združuje kuhinjo, jedilnico in dnevno sobo v svetlo in prijetno enoto, zasnovano kot središče vsakdanjega bivanja in druženja. Prostor je bogat z naravno svetlobo zaradi velikih PVC dvižno-drsnih sten s troslojno zasteklitvijo, ki omogočajo neposreden dostop do pokrite terase in vrta. Zunanjost se logično povezuje z notranjostjo, standardni bazen, ki se nahaja ob terasi, pa še dodatno poudarja občutek udobja in bivanja na prostem. Stopnišče vodi v prvo nadstropje, ki je organizirano kot bolj zasebni del hiše, z jasno definiranimi prostori, namenjenimi sprostitvi in vsakdanjemu življenju. Razporeditev prostorov omogoča udobne spalnice z dovolj prostora za omare, centralno umeščeno kopalnico in funkcionalne komunikacijske površine, ki zagotavljajo praktičnost in prijeten ritem izrabe prostora. Vsi prostori so opremljeni s klimatsko napravo, talno ogrevanje z električnim blokom pa zagotavlja enakomerno in prijetno toploto skozi vse leto. Skupna neto površina hiše je 108 m2, nepremičnini pa pripadata dve parkirni mesti. Predviden zaključek gradnje je konec leta 2026. Naprodaj je še ena srednja enota, zaradi česar je ta nepremičnina zanimiva priložnost za nakup v fazi gradnje, bodisi za lastno bivanje bodisi kot dolgoročna naložba za počitniški in turistični najem. Cenjene stranke, agencijska provizija se obračunava v skladu s Splošnimi pogoji poslovanja: www.myadriatic.hr/opci-uvjeti-poslovanja
ID: 1256577